General Retrofit/Conversion Solutions

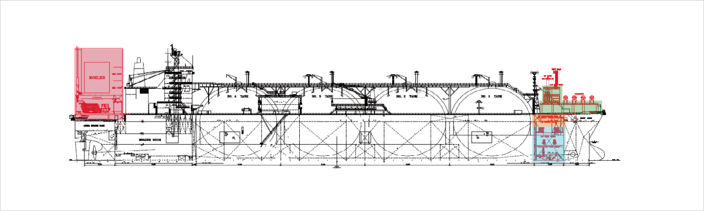
LNG Carrier Conversion to LNG FSRU/FSU

FSRU Conversion has gained attention recently due to increasing LNG demand and its cost and time efficiency compared to onshore plants.
Converting existing LNG carriers offers greater economic efficiency and shorter lead times than manufacturing new vessels. Additionally, vessel operators can quickly respond to changing market conditions, increase investment returns, and practice environmental management.

Scope of Work

  • Regasification Module(LNG Vaporizer)
  • Suction Drum(Re-condenser) Module
  • LNG HP Booster Pump Skid
  • GW Heat Exchanger and Regas SW/GW Pump
  • HIPPS / Gas Metering System / LNG Sampling System
  • Mooring System
General Concept Arrangement for Membrane Type FSRU
General Concept Arrangement for Moss Type FSRU

Dual Fuel Conversion

Dual Fuel Retrofit involves modifying the ship's propulsion system, including main engines and fuel systems, to use alternative fuels.
This aims to improve fuel flexibility, reduce exhaust emissions, lower OPEX, and ensure regulatory compliance.
Converting to dual fuel is the most straightforward solution to meet both charterers' demands for green transportation and IMO and regional decarbonization legislation.

Scope of Work

  • Main Engine Retrofit
    (MC/RTA : Replacement,
    ME/RT flex : Conversion)
  • Fuel Gas Supply System
    with Bunker Station
  • Alternative Fuel
    (LNG, Methanol, Ammonia) Tank

Benefit : Compliance GHG regulation, Fuel Flexibility

General Concept Arrangement for Container
General Concept Arrangement for VLCC

Containership Cargo Capacity Improvement

By modifying cargo vessels through additions like container ship Lashing Bridges or Mickey Mouse tiers, we maximize transport capacity by increasing cargo capacity and adding tiers, providing cost-effective and rapid solutions to increase shipping companies' profits.

Scope of Work

  • Accommodation
    (Deck house) Elevation
  • Higher Lashing
    (Additional Tier)
  • Added Mickey Mouse
  • Lashing Concept Change
    (From Internal to External Lashing)

Benefit : Cargo Capacity Increase, CII* Rating Improvement

(*) CII : Carbon Intensity Indicator

Accommodation Elevation

Ship Lengthening for Containership

Container ship length extension, chosen in line with the trend toward larger vessels, offers various advantages, including increased cargo capacity, improved operational efficiency, and maintained competitiveness.
Additionally, the space can be utilized for installing fuel tanks for dual-fuel propulsion systems, allowing for more cargo space.

Scope of Work

  • Strength Assessment for Additional
    Bending Moment
  • Reassessment in accordance with SOLAS
    and MARPOL
  • Raised Sheer Strake
  • Modification of Stanchion, chocks and rails
  • Possible EEXI improvement for environmental regulation compliance

Benefit : Approximately 10% increase in cargo capacity possible(based on 14K TEU container ships)